Brystninger - såvel som tag - er beklædt med eternitskifre.
Hovedindgangen er placeret i en forskydning mellem de to tre-etages undervisningsbygninger. Bag denne er den centrale trappe beliggende.
Bygningerne er opført af gule mursten og pladsstøbte etageadskildelser af jernbeton.
Legepladsen er opdelt af lave mure med bænkerader imellem.
Hele skolen er forbundet med overdækkede gange, der forbinder småbørnsskolen, gymnastiksale og spartshal.
Det centrale trapperum i den tre etages hovedbygning.
De fleste indvendige vægge er opført i blank mur som veksler med pudsede og malede overflader.
Loftet mellem de hvide jernbeton spær er - i lighed med væggene - beklædt med fyrretræslister. Sportshallen har direkte adgang fra Åkandevej ved aftenmøder, sportstævner o.l.
Gymnastiksalene er placeret nord for undervisningsbygningerne og har direkte udgang til sportspladsen.
Et endnu bevaret dørgreb designet af Kay Fisker.
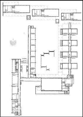
Den tre etages blok til venstre rummer hovedskole og kontorer. Til højre et etages bygningerne for mindre børn. Øverst de tre gymnastiksale og nederst sportshallen.
Lokaler for små børn i de lave bygninger, for større i de tre-etagers.
Bygningen er opført af gule mursten med jernbeton etageadskildelser, dækket af eternitskifre. Solskærmene er af impregneret træ.
Beskrivelse:
Voldparkens Skole ligger ved Utterslev Mose i Brønshøj. Skolen består af en- og treetages bygninger, som sammen med to gymnastiksale og en sportshal indrammer skolegården.
Den lave enetages længe er for de yngste elever, og til hvert klasseværelse hører en åben gårdhave. Parallelt med denne længe og på den anden side af skolegården ligger en treetages bygning til de større børn. Denne bygning er længere og består egentlig af to fløje, der er forskudt i forhold til hinanden. De to fløje er forbundet af et trapperum.
Skolen blev lukket i 2008, og fungerer i dag som foreningshus og udflytterbørnehave, under navnet Energicenter Voldparken. I 2017 blev bygningskomplekset udbygget med en ny multihal, tegnet af BBP arkitekter.
