Foyer II
Den lange foyer binder øverum og musiksal sammen.
Fotograf: Andreas Trier Mørch
Download billede
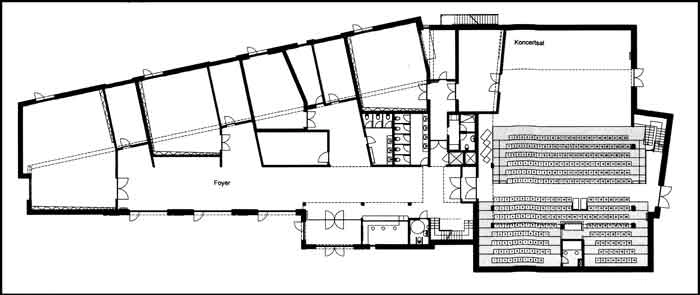
Plan
Bygningen bindes sammen af det lige gangfprløb hvor øverummene er anbragt som tænder på en kam. Bygningen har et areal på 2000 m2.
Fotograf: Andreas Trier Mørch
Download billede
Beskrivelse:
Det enkle og stramme hus er blevet til i tæt samarbejde med Dan Christensen, en af indehaverne af Arkitektfirmaet Kjær og Richter i Århus.
Facaderne har regulære flader med markante, lodrette spor og præcise vindueshuller. Ingen sten er skåret og projektet afspejler den systematik, der er et af Per Kirkebys karakteristika.
ALFA står for byerne Aalestrup, Løgstør, Farsø og Aars.
Emneord:
Uddannelsesbygninger | Koncertsale | Musikhuse | Teglsten | Kulturcentre | Links: Kjær & Richter |
