Beskrivelse:
Vestersøhus betragtes som et af dansk funktionalismes væsentligste værker. Byggeriet blev stildannende og prægede en række bygninger i den efterfølgende periode.
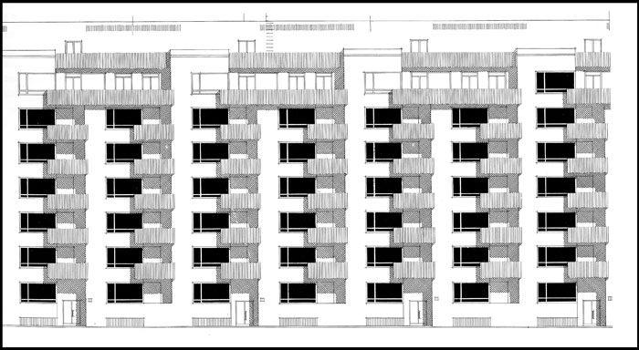
Altanen var en af 1930-ernes største boligforbedringer, og i Vestersøhus når den optimerede sammenfletning af karnapper og altaner et arkitektonisk højdepunkt.
Vestersøhus facade mod gaden domineres af lodrette og vandrette linjer og af solbelyste og skyggelagte partier. Indgangspartierne er trukket tilbage fra gadelinjen og fremstår som som slanke, lodrette partier.
På 7. etage findes store terrasser mellem hver anden karnap og herover igen tagterrasser for alle husets beboere. Alle lejlighederne har altaner som er orienteret mod vest og hjørnevinduerne i opholdstuerne mod sydvest. Hjørnevinduet har en lav brystning, og altanen opfattes som en naturlig udvidelse af stuen.
Bygningen er opført af massivt murværk, af røde, håndstrøgne tegl i krydsforbandt. Bygningen har et grundareal på 12.845 m2 hvoraf ca. 6.000 m2 er bebygget. Vestersøhus indeholder 436 lejligheder og 14 butikker.
