Adgangen til museet er synliggjort af en stor facadeskærm af glas og metal, som kan bruges både som belysningselement og som opsætningsstativ for skiltning.
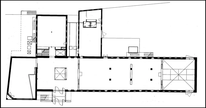
Mellem museets to sidebygninger er der nu indrettet et glasoverdækket opholdsareal, som kan bruges til udstilling af skulpturer.
Foyerområdet, umiddelbart indenfor hoveddøren, er omdrejningspunkt for alle museets aktiviteter.
Stueetagen er disponeret til særudstillinger - her om møbelarkitekten Poul Kjærholm.
Klædefabrikkens gamle støbejernsvinduer er bevaret og istandsat.
På 1. etage vises museets faste samling, primært bestående af Vendsyssels bedste malere. Hvert andet vindue er blændet indefra for at skaffe mere ophængningsplads. Materet glas i de resterende vinduer sikrer diffussering af dagslyset.
Museet, som ses bagest i billedet, er beliggende i Hjørrings bymidte ved P. Nørkjærs Plads. Denne blev byfornyet i 1988 af arkitekt Kjeld Bjerg og med skulpturer af Bjørn Nørgaard. En trappe i hele kareens bredde udligner bydelens niveauforskel.
Området omkring museet i Hjørrings bymidte er tæt bebygget.
Museet består af en langstrakt hovedbygning og to mindre sidebygninger, koblet sammen af et glastag.
Beskrivelse:
Vendsyssel Kunstmuseum er indrettet i en tidligere klædefabrik fra slutningen af 1800-tallet. Ombygningen har transformeret det detaljerige industribyggeri til en enkel og ligefrem kulturbygning, der forener datidens stil med et nutidigt udtryk.
Forenklingen er sket ved fx at fjerne udspring i facaden, rummene er renset for historiske detaljer, og vinduer er blændet til fordel for store, rene flader, der giver plads til kunsten. Bygningen er tilføjet et modernistisk lag med bl.a. indgangspartiets stålkvadrat.
Et ønske om mere udstillingsplads har ført til planerne om en tilbygning, der imidlertid ikke ændrer på udtrykket i det eksisterende byggeri, idet den er placeret under terræn. Adgangen sker via et glasprisme i museets gård, der sammen med ovenlysvinduer oplyser udstillingssalene. Samtidig skaber glasset visuel forbindelse mellem hoved- og tilbygning.
Kilde: C. F. Møller Architect
