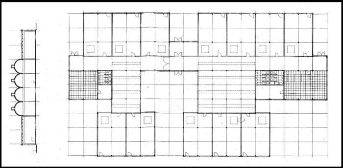
Faglokaler adskilles fra klasseværelser af en lavvandet kanal.
Facaderne fremstår rustiskt med sortbejdsede beklædningsbrædder og grønne skodder.
Fælleslokalet mellem klasselokalerne bruges til gruppearbejde og leg.
Eleverne har mulighed at give indgangen til klasseværelserne et individuelt præg.
Beskrivelse:
Uglegårdsskolen blev opført i årene 1972-1974. Oprindeligt skulle skolen opføres i beton, men det viste sig at blive for dyrt. Derfor valgte man i stedet at bygge i træ og andre enkle og billige, dagligdags materialer. Kanalen var ikke en del af vinderforslaget, men kom til senere. Skolen blev opført med skydevinduer bag skodderne, tæppebelagte gulve og lofter isoleret med lakeret stenuld fastholdt af trådgitre.
Selve skolebygningen består af to parallelle, én etage høje bygningsbånd placeret på hver sin side af en gennemgående, ca. 200 meter lang kanal. Overdækkede broer og pergolaer knytter de to bygningsbånd med hinanden, og mellem bygninger og kanal findes en række varierede haverum. Det vestlige bygningsbånd rummer almenklasser, lærerværelse og større fællesområder (storklasserum), mens det østlige bygningsbånd blandt andet rummer faglokaler, bibliotek, gymnastiksal og administration.
Kilde: trap.lex.dk/Ugleg%C3%A5rdsskolen,_Solr%C3%B8d_Strand
