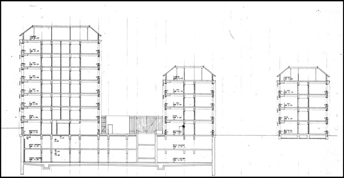
Gavl
Udadtil fremtræder bygningen monumental og tilknappet.
Fotograf: Andreas Trier Mørch
Download billede
Facadeudsnit
Facadeudsnit med murede piller og mellemliggende, faste betonjalousier mod Torvegade.
Fotograf: Andreas Trier Mørch
Download billede
Eigtveds Pakhus
Restaureringen af Eigtveds Parkus blev gennemført i 1979-80 af Erik Møllers Tegnestue.
Fotograf: Tegnestuen
Download billede
Kantine
Der er indrettet kantine i bunden af de brune palæbygninger.
Fotograf: Tegnestuen
Download billede
Beskrivelse:
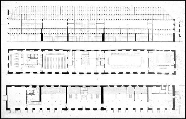
Bygningerne indeholder hovedsageligt kontorer, idet repræsentationslokalerne er flyttet til det nærliggende Eigtveds Pakhus. Gavlene refererer til de pakhuse, der tidligere dominerede området.
Bygningens bredde er to gange kontordybde plus den tilhørende forbindelsesgang.
