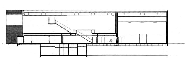
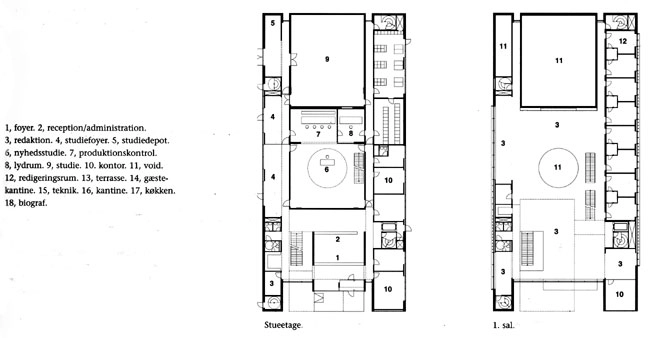
TV Studie
TV studiet er beliggende i terrænniveau med et cirkulært ovenlysparti.
Fotograf: Andreas Trier Mørch
Download billede
Beskrivelse:
Bygningen fremtræder som en regulær teglstenskube.
Fra indgangssiden fremstår bygningen strærkt kubistisk. Indgangspartiet med det udkragede konferencerum fremtræder stærkt minimalistisk.
Emneord:
Administrationsbygninger | Tegl | Telekommunikationsbygninger | TV Studier | Links: SHL |
