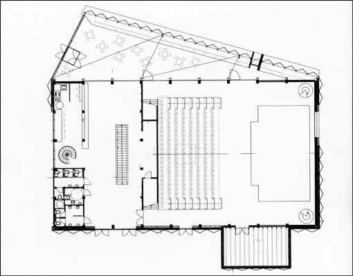
Ombygningen af Taastrup Teater udgøres i hovedsagen af et nyt indgangs- og foyerparti. Bemærk soklen som er udformet som en siddebænk.
Facaden mod Taastrupsgårdsvej er en stor skæv flade sammensat af gennemsigtige plastpyramider.
Facaden består af prismer i polykarbonat, der varierer i et mønster af transparente, translucente og lukkede elementer, som skaber et væld af forskellige lysvirkninger.
I forbindelse med ombygningen er cafeen flyttet fra kælderen op i foyeen.
Foyyeren er et skævt rum mellem teatrets betonkasse og den nye facade.
Taastrup teater er en tidlige gymnastiksal ved Selsmoseskolen hvor det har holdt til siden 1980-erne. I 1990-erne blev der udført store renoveringer og i 2007 gik Realdania sammen med kommunen om financieringen af den nye tilbygning.
Se på Google Maps
