Facade
Også solafskærmningerne er udført i cortenplader.
Fotograf: Andreas Trier Mørch
Download billede
Varmecentral
Varmecentralen er beliggende adskildt fra det øvrige byggeri.
Fotograf: Andreas Trier Mørch
Download billede
Trappe
Indvendigt træder bygningens pladsstøbte betonvægge tydeligt frem.
Fotograf: Andreas Trier Mørch
Download billede
Beskrivelse:
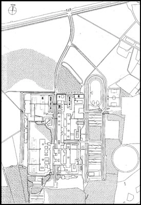
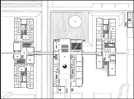
Syddansk Universitet i Odense er arktitektonisk bygget på et princip om konsekvent integration af de centrale funktioner med de forskellige institutområder. Selvom Syddansk Universitet er opført i begyndelsen af 70'erne fremstår det stadig med høj grad af kvalitet såvel funktionelt som arkitektonisk og med en smukt patineret facade i Corten-stål.
De tre etager høje facader er overalt beklædt med cortenplader.
Emneord:
Stål | Konkurrencer | Uddannelsesbygninger | Beton | Brandtrapper | Universiteter | Corten | Pladebeklædninger | Syddansk Universitet | Links: Knud Holscher - Weilbach | KHR |
