Svendborg Kraftvarmeværk
| Landskabsarkitekt Torben Schønherr • Lene Tranberg • Boje Lundgaard | 1997 - 1999Produktionen af varme og el har længe været i gang på Kraftvarmeværket i Svendborg og dette er nu udbygget med anlægget til affaldsforbrænding. Til sammen udgør de to byggerier det største anlægsarbejde på Fyn i mange år. Svendborg Kommune har været bygherre i samarbejde med de omliggende kommuner.
Værket har et stort gennemgående vandret vinduesbånd placeret under tagkanten, der giver gode lysforhold dybt ind i bygningen, skaber udluftning samt tilfører facaden et forskelligt udtryk dag og nat.
Den nye ovnlinie er 125 m. lang, 25 m. bred og 30 m. høj og kan afbrænde seks ton affald i timen.
Ovnliniebygningen har en relativt tæt facade dækket af aluminiumsplader.
Facaden er beklædt med aluminiumsplader vekslende med forstørrede vandnæser, som medvirker til de store facaders vandrete skyggespil.
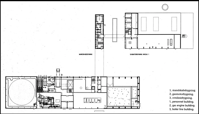
De tre bygningsmæssige hovedelementer er samlet omkring en intern værkstedsgård. Broen binder værkets forskellige afsnit sammen til et hele.
Funktionerne er organiseret således, at der opnås en bygningskomposition, der tilfredsstiller både tekniske og funktionelle krav og på samme tid giver anlægget et roligt, kraftfuldt og letopfatteligt udtryk.
Værket producerer 110 GWh/året og forsyner 26.000 husstande med el og 9.300 husstande med varme.
Se på Google Maps
