En lukket gangbro forbinder fakultetet med de eksisterende laboratoriebygninger.
I kantinen kan bygningens konstruktive opbygning tydeligt aflæses.
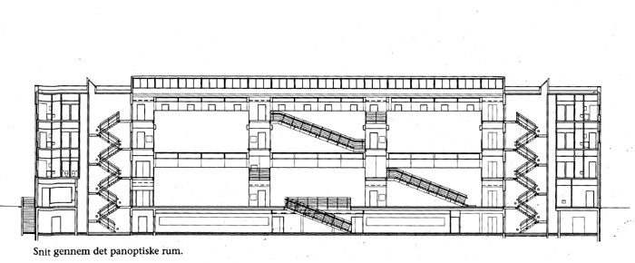
Den centrale vandrehal skaber rumlig sammenhæng mellem alle etager.
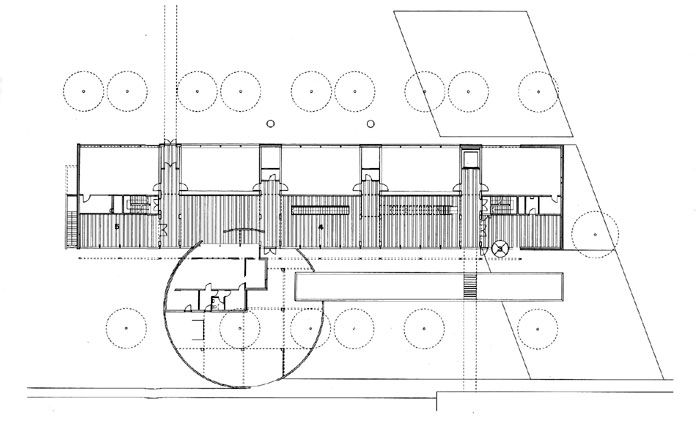
Plan med indtegning af bygningens cirkulære gårdrum.
Rummene beliggende langs bygningens facade er dobbelthøje.
Princip over bygningens opbygning hvis hovedide er bærende betonskiver, som understøtter 12 meter lange etagedæk. Disse er synlige og ubehandlede.
Beskrivelse:
Fakultetet respekterer og bygger videre på Winsløwparkens enkle bygningsstruktur – men er et mere åbent hus, der orienterer sig mod omgivelserne.
Glasbroer forbinder i førstesals højde til de tilstødende bygningsafsnit og til et panoptisk trapperum, der forbinder alle etageplaner. I den åbne sydvendte facade formes en dobbelthøj kantine ved at undvære det nederste sydlige dæk.
