I bebyggelsen er udlagt store fællesarealer til leg og rekreation.
Karakteristisk for bebyggelsen er at der ikke er egentlige, private haver(undtaget ved rækkehusene) og at disse står i direkte forbindelse med fællesarealerne.
Facaderne er udført af gule, håndstrøgne sten
Som den eneste af hustypene er rækkehusene forsynet med små, private haver
Foruden børnehave rummer bygningen også vuggestue og fritidshjem
Butikstorvet er beliggende på arealets nordøstlige hjørne ud til Bagsværd Hovedgade.
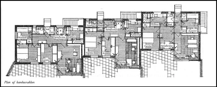
De to etagers rækkehuse ligger i det vestlige skel. Den næste sektor rummer kamhusene der danner overgangen til de 69 enfamiliehuse.
Bebyggelsen rummer ialt 69 rækkehuse i 8 rækker
Beskrivelse:
Da Søndergårdsparken blev bygget i 1949-50 var det en dristig fornyelse. Boligerne var nemlig lave huse omgivet af grønne områder, hvilket stod i skarp kontrast til de store etagebyggerier, der hidtil havde domineret.
Boligerne er placeret omkring et stort fællesareal, og alle huse har en tilhørende privat have. Netop det grønne fællesareal i midten samt kombinationen af fritliggende og sammenbyggede huse afslører, at bebyggelsen var inspireret af de engelske havebyer fra begyndelsen af 1900-tallet. Til gengæld er husenes homogene, gule teglarkitektur og de spartanske huskroppe uden overflødige dikkedarer udpræget dansk. Dog har et enkelt dekorativt element sneget sig ind: de hvide vinduesindramninger.
Netop husenes knaphed, materialer og samspil med landskabet tydeliggør, at bebyggelsen knytter sig til den funktionelle tradition.
Kilde: DAC
