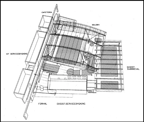
Det nye indgangsparti som betjener både den oprindelige (blå) og den nye svømmehal.
Det vældige tag virker samlende på bademiljøets mange funktioner.
Taget bæres af skråtstillede dragere der samles i fire søjler.
Beskrivelse:
Svømmehallen er opført hvor det tidligere Kolding Friluftsbad var placeret, direkte ud mod Slotssøen og over for det markante Koldinghus.
Det store haltag har fået en svævende udformning, båret af 4 centralsøjler og friholdt fra dæk og servicebygninger med facader udført i en sprosseløs glaskonstruktion. Halområdet indeholder bl.a, et sportsbassin (21×25 m), et varmtvandsbassin, et træningsbassin, øvebassin, et babybassin, en spa-pool samt et morskabsbassinområde med tilhørende vandrutschebane.
I byggeriet indgår også mødefaciliteter, et motionscenter og en restaurant.
Kilde: Nørh & Sigsgaard
