Alle forskellige rumtyper har en fællesnævner, som er en vandret ramme i dørhøjde, hvilende på søjler i rummets hjørner. Dette for at de skal kunne mødes og forbindes, - addere sig.
Også tagrenderne følger rammerne - eller rettere fugen mellem rammerne, som er bygningens fællesnævner.
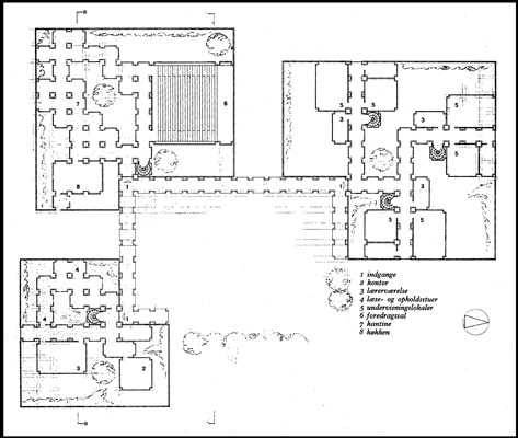
Herning skolerne er et addetivt princip, som indebar, at skolen ville kunne have udviklet sig frit i alle retninger.
Beskrivelse:
Omkring 1970 var der planer om eksport- og designskole i Birk, men kun et prøvehus blev opført. Dette har siden haft mange forskellige anvendelser og benyttes nu som privatbolig.
Herning-skolerne er opbygget omkring et addetivt princip opstået ved udforme hver rumtype helt frit mht. størrrelse og belysningsform, men samtidigt underlagt en række bindinger.
