Skives nye Rådhus består af to separate bygningskroppe som veksler mellem lette glasfacader og tunge partier i teglsten.
Rådhuskomplekset skal samle hele den kommunale administration under et tag i den nye storkommune, og servicere 50.000 indbyggere. Rådhuset har et samlet areal på 7.500 m2.
Tre forbindelsesbroer skaber sammenhæng mellem de to bygningskroppe.
Glasfacaderne på gangbroerne er udstyret med vandrette sollameller, i det Rådhuset er opført så "grønt" som muligt. Således er der på taget 265 m2 solfangere, der forsyner bygningen med varme til både rum og vand og et regnvandsanæg, der opsamler vand til brug i toiletterne.
Den 150 m2 store byrådssal er indrettet i en af de svævende gangbroer, der binder rådhusbyggeriet sammen.
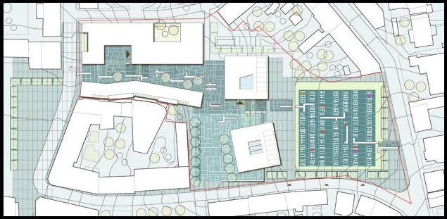
Birk Nielsens Tegnestue og Arkitema opfører i samarbejde både Skives nye Rådhus og Bibliotek (se dette) Til højre ses den store parkeringsplads og i midten af billedet de to kvadratiske bygninger, der tilsammen rummer Biblioteket. Et fælles gangstrøg rummer tre torvedannelser som forbinder hele anlægget.
Se på Google Maps
