Biblioteket er tegnet som en del af et samlet kompleks omfattende både rådhus og bibliotek. På billedet ses Bibliotekets to bygninger fra den store, fælles parkeringsplads. Biblioteket blev indviet 14. september 2007.
Bibliotek og Rådhus er beliggende på et skrånende terræn som begge nås via en bred trappe.
På trappens venstre side er placeret en elevator.
Ind- og udlån foregår i stueetagen under den store lysskakt.
På gangbroen er indrettet læse- og studiepladser.
Musikafdelingen er også placeret på gangbroen.
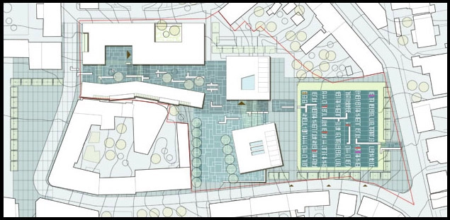
Birk Nielsens Tegnestue og Arkitema opfører i samarbejde Biblioteket og det nye rådhus (Se dette) Til højre ses den store parkeringsplads og i midten de to kvadratiske bygninger, der tilsammen rummer Biblioteket og til venstre rådhuset. Et fælles gangstrøg rummende tre torvedannelser forbinder hele anlægget.
Se på Google Maps
