Spring ned til indholdet
Om
Fotografer
Kort
Siloetten
|
Christian Carlsen Arkitektfirma
•
C. F. Møller
| 2008 - 2009
Fotograf:
Andreas Trier Mørch
Download billede
Fotograf:
Andreas Trier Mørch
Download billede
Fotograf:
Andreas Trier Mørch
Download billede
Fotograf:
Andreas Trier Mørch
Download billede
Fotograf:
Andreas Trier Mørch
Download billede
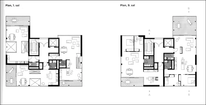
Plan
1. og 9. etage
Fotograf:
Tegnestuen
Download billede
Snit
Snit A-A og Snit B-B (se plan)
Fotograf:
Tegnestuen
Download billede
Situationsplan
Fotograf:
Tegnestuen
Download billede
Beskrivelse:
Emneord:
Etageboliger
|
Højhuse
|
Boligbyggeri
|
Renovering
|
Adresse:
Se på Google Maps
Links:
Christian Carlsen - Website
|
Siluetten - Website
|