Biblioteket er en lang 3. etagers murstensbygning placeret til venstre for Universitets indgangsportal.
Byggeriet er anden etape af den samlede udbygningsplan for Roskilde Universitetscenter som blev udarbejdet af Henning Larsens Tegnestue i 1995 og omfatter 26.000 m2 nybyggeri over en årrække.
Når man ankommer til RUC fra syd mødes man af en lang mur af gule mursten og med sorte vinduesbånd med solafskærmende lameller. Midt i den lange mur er der en bred åbning som fører indenfor til universitetscenteres område.
Til venstre for indgangsportalen er bibliotekets forplads.
Indgangen er i gavlen af den store glasbygning, som ligger op ad den lange gule bygning, der danner mur mod omgivelserne. Glasfacadens tonede glas reflekterer omgivelserne, og afslører derfor ikke rummets indre.
Glasfacaden mod nord giver bygningen transparens og åbenhed - samt brugerne en flot udsigt til søen og haven.
Med byggeriet er der opstået et stort haverum mellem det gamle center og den nye bygning og hermed anderledes end de mindre gader og gårdrum mellem de oprindelige bygninger.
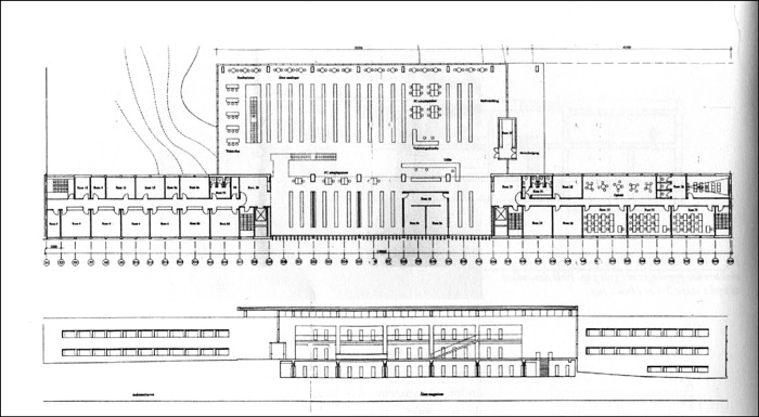
Langs med den hovedganglinien er skranken for udlån og aflevering.
Der er 112 pc arbejdspladser til publikum, heraf 24 til egne medbragte pc-ére.
Udlånsafdelingen har en dobbelt etagehøjde på otte meter og er 2.300 m2 stort. Rummet er sammenbygget med den lange fløjs to etager hvoraf den øverste er en åben balkon.
Bygningen har et modul på 9 meter bestemt af de store betonrammer, som bærer på tværs af rummet. Dette store modul giver fleksibilitet i placeringen af bogreolerne.
Bogsamlingen er anbragt på 11.000 hyldemeter med publikumsadgang og 5.500 meter i lukkede magasiner. I kælderetagen er der mindre lys og lavere til loftet og ser man ud af vinduerne er man næsten i niveau med vandspejlet i den kunstige sø.
Biblioteket har et bruttoareal på 7.590 m2, hvoraf 1.605 m2 er brugt til interne kontorer.
Modelbilled af hele bebyggelsen RUC. De eksisterende bygninger er i gråt pap. Hele den sydlige tilføjelse (etape 2-4) er i hvidt pap.
Se på Google Maps
