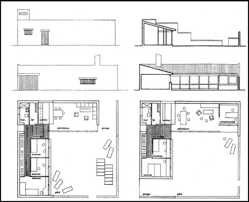
Gårdhustypen dannes af to vinkelfløje med lave skærmmure på de to modstående sider.
Mod vejen er vinduesåbninger små og giver husene et tilknappet udtryk.
Husenes forskydninger gør det muligt at danne mere bymæssige gadeforløb og torve mellem facaderne.
Det bebyggede areal er meget komprimeret, så der frigøres store fællesarealer.
Mod fællesarealet har vinkelhusene lave mure der omkranser den private gårdhave.
Beskrivelse:
Vinkelhusene er sammenbygget i forskudte kæder der omhyggeligt tilpasser sig terrænkoter og friholder fællesarealer for bebyggelse.
Bebyggelsen er et af de første eksempler på Utzons såkaldte additive arkitektur. De enkelte husenheder kan nemlig knyttes sammen på forskellige måder og forskyder sig både vandret og lodret i forhold til hinanden. Disse forskydninger, det homogene materialevalg af gule mursten og de karakteristiske skorstene får bebyggelsen til at minde om en skulptur. En skulptur, der på én og samme tid værner om privatlivets fred og åbner mod fællesskabet.
Kilde: DAC
