Rold Skov Savværk (Fuglsang Savværk)

| Schmidt Hammer Lassen (SHL) | 1990
Rold Skov Savværk (Fuglsang Savværk)
Download billede
Rold Skov Savværk (Fuglsang Savværk)
Download billede
Rold Skov Savværk (Fuglsang Savværk) Vestgavl
Vestgavl
Download billede
Rold Skov Savværk (Fuglsang Savværk) Østgavl
Østgavl
Download billede
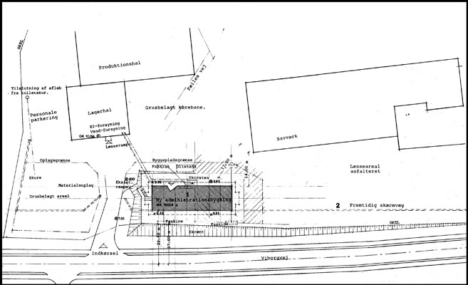
Rold Skov Savværk (Fuglsang Savværk) Situationsplan
Situationsplan
Fotograf: Tegnestuen
Download billede
Rold Skov Savværk (Fuglsang Savværk) Plan
Plan
Fotograf: Tegnestuen
Download billede
Rold Skov Savværk (Fuglsang Savværk)
Download billede
Rold Skov Savværk (Fuglsang Savværk)
Download billede
Rold Skov Savværk (Fuglsang Savværk)
Download billede
Rold Skov Savværk (Fuglsang Savværk)
Download billede

Beskrivelse:

Bygningens placering fremhæves af det stærkt udkragede tag.

Det udkragede tag understøttes af galvaniserede stålrør.

Emneord:

Stål | Administrationsbygninger | Trapper | Træhuse | Træbeklædninger | Industribygninger | Savværker |
Adresse:
Viborgvej 930
8471 Sabro
Se på Google Maps