Undervisningsfløj. I baggrunden samlingssalen.
Røde håndstrøgne tegl karakteriserer bygningsværket.
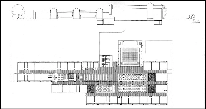
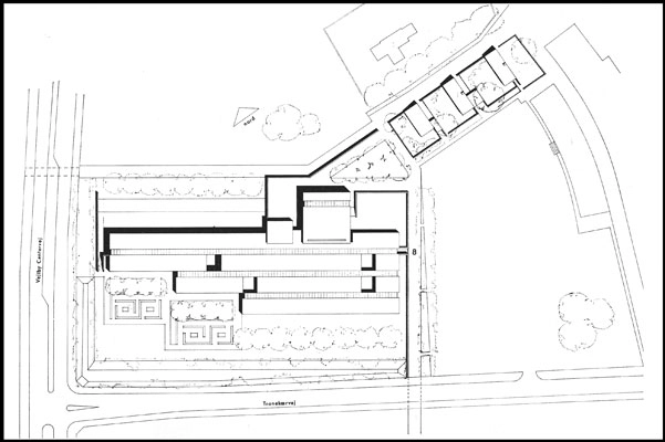
Skolen er opført som fire selvstændige fløje hvorved der fremkommer tre overdækkede gange.
Facade mod nord med samlingssal og undervisningsfløj.
Den bærende konstruktion er udført af præfabrikerede betonsøjler og - dragere. Vinduerne er af træ med aluminiums skydevinduer.
Imellem betonsøjlerne er overalt murede skillevægge af røde tegl.
De tre små bygninger øverst th. rummer rektor-, pedel- og præstebolig.
Ved disponeringen af skolen i tre selvstendige fløje fremkommer tre overdækkede gange navngivet med gode danske bygadenavne: Nørregade, Algade og Søndergade
Beskrivelse:
Risskov Amtsgymnasium er bygget efter fagklassesystemet. Det betyder, at eleverne i løbet af skoledagen ”vandrer” til forskellige undervisningslokaler, som er specielt indrettet til de enkelte fag. Det betyder også, at der stilles særlige krav til det store centralrum, der bliver det faste hjemsted for eleverne i pauser og frikvarterer. Gymnasiets funktionelle og arkitektoniske kvalitet afhænger i højeste grad af udformningen af dette centralområde.
 Amtsgymnasiet i Risskov kan karakteriseres som en landsbyløsning. Fire parallelle fløje, konstrueret af betonsøjler og dragere med murværk som udfyldningsvægge, indeholder alle de programsatte lokaler. Mellem fløjene er der langsgående, glasoverdækkede gader, der alle passerer det store bytorv. På torvet er der hævede plateauer, indrammet af murede brystninger, som danner veldefinerede opholds- og pausepladser, løftet over gadernes trafik og uro og skærmet for indblik til flasker og madpapir.
 Den store samlingssal er velegnet til udadvendt brug, koncerter, møder m.v. En hejsevæg kan forbinde og adskille sal og torv. Torvet fungerer i så tilfælde som et attraktivt foyerområde. I det samlede bygningsanlæg er der udsparet små grønnegårde, som giver lys og venlighed til det samlede interiør.
Kilde: Friis & Moltke
