Bygningen måler 42 meter i højden og er synlig på stor afstand i det flade område omkring Herning.
Huset er beliggende ud til den firsporede Dronningens Boulevard, der gennemskærer byen fra øst til vest, og markerer indgangen til Hernings finansielle strøg samtidigt med at den forholder sig til den større skala langs Dronningens Boulevard og jernbanen.
Tårnets grundplan er på 216 m2 hvilket gentages op gennem husets øverste ni etager.
Hovedindgangen til tårnbygningen er nærmest skjult i en niche på husets østside.
Beklædningen på 3100 m2 er en indisk granitsten ved navn: Golden Glory.
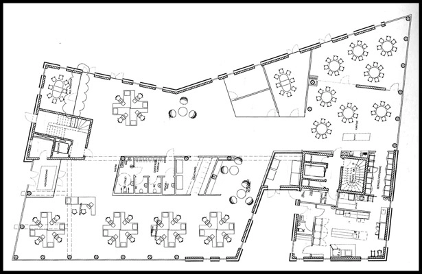
Bebyggelsens tre nederste etager følger i form matriklens geometri og rummer hver 890 m2 kontorareal per etage og er udformet, så de har en høj grad af fleksibilitet i forhold til indretningen af erhvervslokaler.
Huset er på 12 etager plus en parkeringskælder, der kan rumme 55 biler. Bygningen har et samlet areal på 4.500 m2. Oprindeligt var det meningen at alle otte etager i tårnbygningen skulle have været boliger men i dag er Queens Corner udelukkende en erhvervsejendom.
Se på Google Maps
