Bygningens facade mod det langstrakte parkareal på den nedlagte Prags Boulevard. Her findes bygningens hovedindgang.
Bygningen er beklædt med et kompositmateriale - polycarbonat, der er translucent, så blødt dagslys dagen igennem oplyser hallen. Omvendt vil bygningen efter solnedgang lyse omgivelserne op.
Polycarbonat har en ringe isoleringsevne, der gør at indeklimaet i hallen hurtigt påvirkes af temperatursvingninger i vejret udenfor. Om sommeren reguleres temperaturen naturligt alene med automatisk åbning af højt og lavtsiddende vinduer. Om vinteren ved hjælp af strålevarmepaneler, der hurtigt kan hæve temperaturen.
I Vermlandsgade afslutter idrætshallen en lille blind sidegade.
Bygningens indre er holdt i hvidt, grønt og naturligt træ. Boldbanen er grøn som græs og farven er ført op af siddetrapperne til det hævede balkonniveau.
Den bærende konstruktion består af hvidmalede ståldragere og limtræ, som bærer den tynde beklædning af mælkehvidt polycarbonat.
Plastbeklædningen trækker et behageligt, diffust dagslys ind i hallen.
Den storladne og monumentale hal skal opleves indefra idet facaden kun viser en svag afglans af rummets kvaliteter.
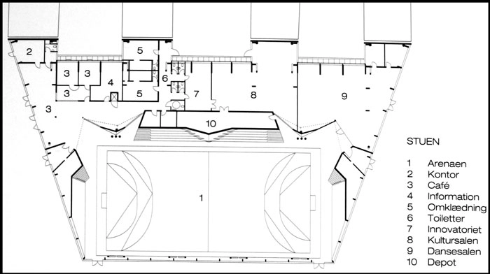
Under balkonen er omklædningsrum og mindre aflukkede træningslokaler placeret.
Bygningen hovedform er en sammensmeltning af et almindelig halbyggeri og de fire gavle fra de eksisterende karreer. Et sted markeres gavlene tydeligt og bliver udnyttet som klatrevæg.
Et af træningslokalerne beliggende under balkonen.
Den centralt placerede håndboldbane har været medbestemmende for bygningens udformning. Hallen har et samlet areal på 3.400 m2.
Loftshøjden varierer fra ca. 7,5 m. på den ene langside til næsten 16,5 m. i kippen på de fire modstående gavle.
Beskrivelse:
Prismen, som er Holmbladsgades nye idræt- og Kulturhus, er en arkitektonisk fornyelse af idrætsbyggeriet. Bygningen har en enkel hovedform der tager afsæt i stedets eksisterende karrestruktur.
