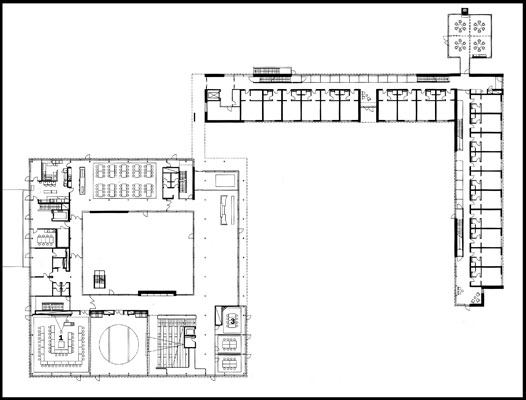
Den næsten 7000 m2 store bygning rummer undervisningslokaler, konferencerum, workshop og gæstelejligheder.
Gæstefløjen rummer 40 værelser til kursister.
Sammenføjningen mellem undervisningsbygning og gæstefløj.
Gæstefløjens fællesstue er et kubisk glasrum i tæt kontakt med naturen.
Et bevægeligt vægparti giver mulihed for at indrage trappe og bænke i et stort auditorium (næste billed)
Stolene er produceret af Magnus Olesen A/S
Beskrivelse:
Træningscentret er placeret på en svagt skrånende grund ned mod Gudenåen.
Byggeriet består af et akademiafsnit med undervisning, konferencerum m.m. og et kollegieafsnit - komponeret omkring 3 uderum - forpladsen, gårdrummet og kollegiehaven.
Bygningen er formet som en boks med atrium i midten. Den øverste del er beklædt med sandsten, mens den nederste del er inddækket i glas
