Kontorfløjens fire øverste etager er gjort mere afvekslende ved at vinduespartierne er trukket tilbage fra facadeflugten.
Højhusets hovedindgang er orienteret mod banegraven.
Det arkitektonisk mere sprælske, afrundede bygningshjørne med indgangsparti til banken.
Beskrivelse:
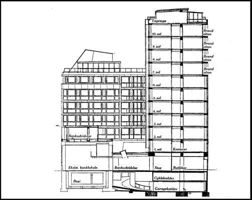
Panoptikon er et 11-etagers højhus, opført i 1950-1952 efter tegninger af Mogens Jacobsen og Alex Poulsen. Huset er bygget for Arbejdernes Landsbank som stadig har hoved sæde i bygningen.
Etagepladerne hviler på fritstående søjler der er trukket ind bag facadernes glas- og træværksvægge. Den næsten vinduesløse gavl mod Vesterbrogade er beklædt med med ”folkemarmor” (armerede betonplader med en forstøbning i hvid cement), bånd og andre faste partier er ligeledes beklædt med ”folkemarmor".
I 2016 stod TNT Arkitekter for en renovering i formaf udskiftning af vinduespartier, solafskærmning, brystningernes forplade, samt glasværn i facaden. Derudover blev de penthouse-lejlighederne omdannet til mødelokaler.
