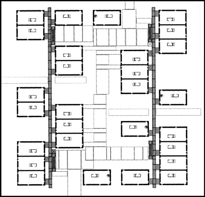
Byggeriet omfatter ialt 220 boliger samlet om mindre gårdrum. Byggeriet er resultatet af en konkurrence, som skulle overholde en lav byggepris og er udviklet i samarbejde med Aicon.
Husene er opført af træelementer med udvendig beklædning af forpatinerede sinusplader i zink.
Som koncept har bebyggelsen karakter af en skurvognsby med åbne adgangsbroer og trapper.
De øvre boliger er udstyret med altaner der har glasbrystninger.
Boligkonceptet går ud på at beboerne kan opdele lejligheden med skillevægge efter behov.
Alle boliger er basisindrettet og der er udarbejdet et tilvalgskatalog, der giver den enkelte beboer adgang til at præge rumopdelingen.
Køkken og badeværelse er placeret i en kerne, om hvilken adgang og møblering frit kan foregå, hvilket giver vide rammer for individuel indretning.
Beskrivelse:
Bebyggelsen er opført af moduler på 2,80 x 2,80 meter og boligenheder på 90 m2. Bebyggelsen er opdelt i tre åbne storkarréer, som hver især knyttes sammen og identificeres omkring et pladsrum placeret i forbindelse med det nord- og sydgående bevægelsesforløb.
Boligerne er forbundet med altangange og gårdmiljøer. Husene er opført af træelementer og udvendigt beklædt med forpatineret zink-sinusplader.
Kilde: Arkitektur DK 2004 Nr. 8
