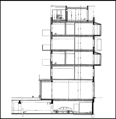
Det tunge murværk hviler næsten naturstridigt i hele sin længde på en base af glas, bag hvilken der findes butikker og cafeer.
Karnapperne er beklædt med kobber, der endnu er gyldent, men med årene vil blive irgrønt. Glasset er uden sprosser i fuld ståhøjde.
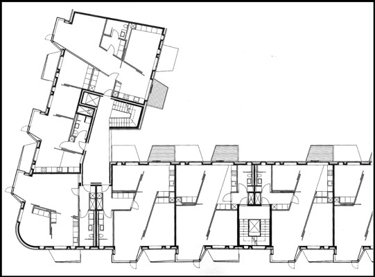
Mod baggården er altanerne, ligesom karnapperne, serielt forskudte i forhold til hinanden, hvilket igen indebærer forskellige planløsninger på hver etage.
Altanerne har samme grundplan som karnapperne.
Huset, som er beliggende på hjørnet af Østerbrogade og Tåsingegade, afslutter den store, lukkede karré.
Byggeriet rummer ialt 55 lejligheder, der er diagonalt forskudte i forhold til hinanden.
Under huset og gården er indrettet en større parkeringskælder.
Beskrivelse:
Boligejendommens unikke facadekomposition fortæller en moderne historie om variation og skulpturel form med afsæt i nabobygningernes rige detaljering. Facadernes brunrøde genbrugstegl og de modernistiske karnapper forbinder bygningen med kvarteret. Karnapperne klædt i kobber og glas skyder ud som øjne på facaden. Her kan beboerne træde ud og få et langt kig op og ned ad gaden, og de trækker samtidig lyset langt ind i lejligheden. Det svære murværk, der runder af og afslutter karreen, spænder i hele sin længde henover en let glasvæg, der beklæder den høje stueetage. Kontrasten mellem den tunge flade, der svæver over den lette, høje glasfacade, giver huset et strejf af modernitet og en uventet base.
Kilde: C. F. Møller Architects
