På alle etager er der fra de lukkede holdlokaler udgang til en lang, gennemgående terrasse.
Solafskærmningen består af lodrette glaslameller med påtrykte bogstaver og i varierende klare farver. Lamellerne kan dagen igennem skifte position og dermed forandre bygningens udtryk afhængig af solens gang.
En af tre roterende glasdøre i bygningens facade mod vest - og mod metroen.
Gymnasiets udendørsareal er placeret ovenpÃ¥ et parkeringshus, der ligger pÃ¥ bygningens østside i forlængelse af undervisningsområderne på første etage. Arealet kan anvendes til ophold eller udendørs undervisning.
Bygningen bindes sammen af en stor spiraltrappe, der kan blive det daglige mødested for elever på forskellige klassetrin.
Foyeren giver via en bred terrasseret trappe adgang til bygningens underetage, hvor gymnastiksalen er beliggende. Bordene på de brede trin kan benyttes henholdsvis til små gruppemøder eller som frokostborde.
Den boomerang-formede udskæring i alle etageadskillelserne bringer dagslyset ned igennem bygningen.
Spindeltrappens roterende bevægelse kan følges op igennem alle etagerne. Den snegleformede trappe beskriver et stort cirkelslag og snor sig kun en kvart omgang for hver etage.
Etagerne forbindes også med elevatorer og bitrapper i de tre, cirkulære trappetårne.
Trappen er fire meter bred, beklædt med asketræ og har et dobbelt gelænder.
I gymnasiet ses den overlappende og fritstående rumlighed, der skal undestøtte den emneorienterede og tværfaglige undervisning. På toppen af hvert af de tre auditorier er indrettet slængemiljøer til uformel fordybelse eller samtale.
De cirkulære auditorier kan åbnes og lukkes med store skydedøre.
De fritstående boksanlæg til eleverne er alle anbragt på hjul
Overalt i bygningen er anvendt lyst, lamineret asketræ med perforeringer, der effektivt dæmper lyden.
Gymnastiksalen kan ændres til teatersal med en lille scene.
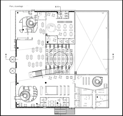
På planen ses de tre kæmpe søjler, som udgør den overordnede, bærende konstruktion. Disse indeholder toiletter, elevatorer og sekundære trapper. De bærende søjler suppleres af en række mindre søjler, som er placeret frit - udelukkende i forhold til de konstruktive krav.
Der er anvendt kraftige stålbjælker i dækkonstruktionen for at klare de store spænd på op til 28 meter, som har været nødvendigt for at kunne gennemføre den åbne og spatiøse indretning.
Beskrivelse:
Gymnasiet er beliggende centralt i Ørestad overfor metrostationen og langs med bydelens kanal.
Fire boomerangformede dæk er roteret for at skabe den kraftfulde overbygning, der danner bygningens overordnede ramme. Fire studiezoner optager én etageplade hver. Ved at undgå niveauforskelle maksimeres den organisatoriske fleksibilitet mest muligt og det er muligt for de forskellige undervisnings- og læringsrum at overlappe og interagere uden tydelige grænser. Rotationen åbner en del af hver etage til det centrale atrium og danner en zone, der giver et fælles rum med visuelle forbindelser, som fremmer etableringen af tværfaglige relationer.
Kilde: 3XN
