Over hovedindgangen ses Odenses våbenskjold.
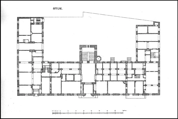
Den store tilbygning, som skyldes Bent Helweg-Møller, er beliggende bag Rådhuset. Den lange opførelsesperioden mellem 1939 og 1955 er foranlediget af Anden Verdenskrig.
Typisk for den sene funktionalisme er anbragt et relief over midterfaget.
Centralt i tilbygningen ligger den store Rådhushal med ovenlyskonstruktion.
Det oprindelige Rådhus er tegnet af J.D.Herholdt og opført i 1881-83
Beskrivelse:
Rådhuset i Odense er tegnet af arkitekterne J.D. Herholdt og Carl Lendorf og er et fremragende eksempel på italiensk gotisk arkitekturstil, der var populær i slutningen af 1800-tallet.
Den nyere tilbygning, tegnet af Helweg-Møller, blev indviet i 1955. Rådhuset indeholder utallige arkitekttegnede detaljer af Helweg-Møller, lige fra beslag, dørhængsler og håndtag til lamper og gelændere med struktur inspireret af planten bjørneklos riflede stængler.
Foran Rådhuset ses en skulptur af Svend Wiig Hansen.
Kilde: VisitOdense
