Tegl dominerer materialemæssigt i både tag og facader.
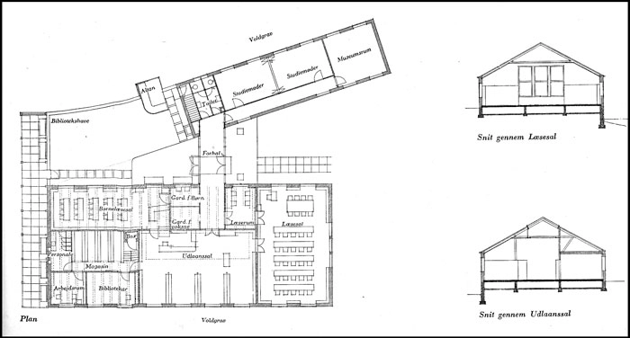
Bygningen er beliggende ud mod voldgraven rundt om Slottet.
I bibliotekssalen er væggene beklædt med en gylden finer, som er en del af husets oprindelige indretning.
Gangen mellem administrations- og biblioteksfløj.
Foran bibliotekets østgavl og i forlængelse af pergolaen er en smuk terrasse anlagt ud mod voldgraven.
Bibliotekets skildte er en del af den oprindelige indretning fra 1940.
Også stolen, med sin originale læderpude, hører med til bibliotelkets oprindelige inventar.
Bibliotekets to fløje er placeret langs voldgravens bredder, hvilket afskærer en stump af parken, som kun er tilgængelig via bibliotekets mellemgang.
Beskrivelse:
Nyborg Biblioteks bygning er et banebrydende arkitektonisk hovedværk inden for dansk bygningskunst. Den er et af de første eksempler på dansk funktionalisme skabt i 1939 af nogle af Danmarks førende arkitekter og møbelsnedkere.
Bygningen er smukt beliggende i parken op mod Nyborg Slot.
