Stueetagens glaspartier er trukket tilbage. I facadeflugten er anbragt en vindafskærmning af glas og stål.
Glasafskærmningen lukker atriet mod syd.
Den dobbelte glasafskærmning (mod støj) fortsætter hele huset rundt.
Bygningen er anbragt på en solid granitsokkel og den øverste penthouseetage er trukket tilbage. Bygningen rummer 350 arbejdspladser.
Den overdækkede hovedindgangen markeres af et indsnit i bygningen.
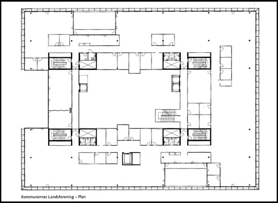
Atriet er placeret i bygningens centrum som får dagslys fra de store glasflader i taget.
Den elegante, udkragede trapper er nedhængt fra loftet.
Trappen bæres af et profil af rustfrie stålplader.
Mod atriet er placeret sekundære rum, dvs. kopirum, køkkener, garderober etc.
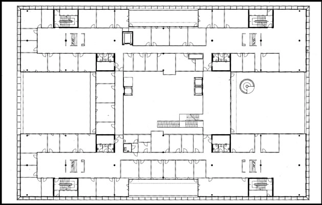
Selom foyeren er beliggende i bygningens midte strømmer dagslyset ind. På gulvet sort granit.
Kantinen betjener både ansatte og gæster i to store afsnit.
Begge huse har facade mod Amager Boulevard og Stadsgraven. Længst til højre ses omridset af SAS Hotellet.
Huset er opbygget af to længer forbundet af tværfløje, som opdeler midterzonen i 3 atrier. Alle kontorer har adgang til dagslys.
Atriet fordeler dagslyset ned igennem bygningen.
KL Huset er en kube hvor kontorarealerne omkranser det centrale, overdækkede atrie. Alle arbejdspladser er beliggende i store kontorlandskaber.
Beskrivelse:
Hovedkontorerne for Kommunernes Landsforening (KL)(forgrund) og HK (det mellemste hus) blev opført næsten samtidigt - begge med Arkitema som arkitekt. Begge bygninger er hævet op på en granitsokkel og har en dobbelt glasfacade som afskærmning mod trafikstøjen fra Amager Boulevard.
