Alle lejligheder har altan mod både gade og gård.
Nogle af stuelejlighederne er udstyret med en lille terresse.
Facaderne brydes af fremstukne glaspaneler, der er dekoreret af billedkunstneren Ruth Campau. De er fremstillet af 16 mm. hærdet og lamineret glas, der vejer op til 150 kg. stykket. Alle 256 har forskellige udtryk og farver.
Facaden er lysende hvid og er et levende mønster af vandrette bånd af store, tilbagetrukne altaner, der skiftevis forskydes over hinanden.
Beskrivelse:
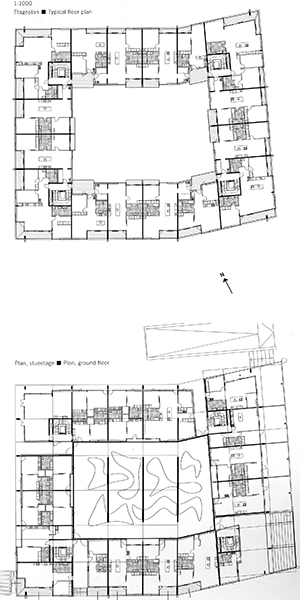
Nordlyset er en lukket boligkarre med en næsten kvadratisk plan omkring et indre udendørs gårdrum. Facadernes knæk er udtryk for et ønske om at give et særligt kig fra lejlighederne mod vandet.
Bebyggelsen er udformet som en hvidpudset blok, der omgiver en gårdhave. Facadelinjen er brudt mod nord og syd, hvilket giver bygningen et organisk udtryk, mens de lyse og venligt udseende lejligheder har udsigt over sundet. Detaljerne understreger det samlede udtryk med farvede glaspartier i et lyst stribet mønster, designet i samarbejde med billedkunstneren Ruth Campau. Glaspartierne afgrænser altanerne og anvendes også i blokkens indgangspartier.
