Nordkraft er transformeret fra en tung industribygning til et multifunktionelt kulturhus. Som projekt har det handlet om at afvægte strategien for at bevare mest muligt mod de krævede ekstra dæk og etagemetre, samt at udnytte den nu overflødiggjorte styrke i de gigantiske beton- og stålkonstruktioner.
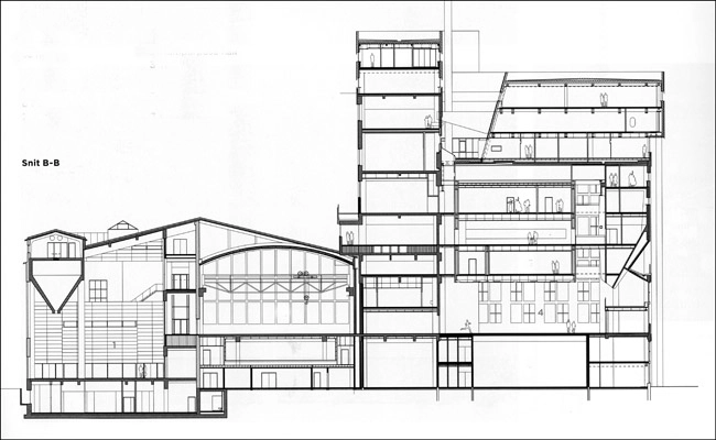
Bygningens stålkonstruktioner er iklædt beton af hensyn til brand. På bygningens venstre side ses den gamle kulbro, der nu fungerer som flugtvej.
Øverst på Nordkraft erstatter to nye, rationelle kontoretager, forskudte og iklædt en hud af strækmetal, de ellers så markante skorstene. Herfra er der en enestående udsigt over Aalborg.
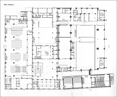
Bygninger er åbnet mod øst og vest af en indre passage og fra midtbyen og gågadenettet til havnefronten står den gamle kedelhal som kulturhusets enorme vindfang.
Nordkraft har, både indvendigt og udvendigt, bevaret sit rå og usminkede udtryk. Alt som er tilføjet er tydeligvis selvstændige elementer, der passer ind med deres engen æstetik.
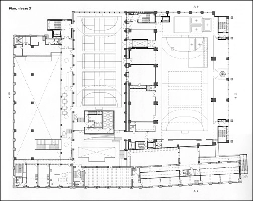
Klatrevæggen er indrettet i den kolossale kedelhal mod øst og er Danmarks højeste med sine 20 meter.
Foyeren er et centralt fordelingsområde med nye åbninger både lodret og vandret.
Bygningen rummer i alt 30,482 m2. og byggesummen har været ca. 200 mio. kr.
Nordkraft er placeret mellem Aalborgs havnearealer og byens centrum, og beskriver som få andre byens udvikling gennem industriarkitekturens epoke.
Se på Google Maps
