Nørrevangskirken

| Poul JensenAnna Maria Indrio | 1989
Nørrevangskirken
Download billede
Nørrevangskirken
Download billede
Nørrevangskirken Total
Total
Download billede
Nørrevangskirken Dekorativ vinduesdetalie
Dekorativ vinduesdetalie
Download billede
Nørrevangskirken Interiør
Interiør

Fordelingsgang.

Download billede
Nørrevangskirken Alter
Alter

Tunge bjælker dominerer loftet over alteret.

Download billede
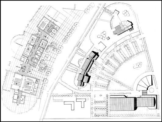
Nørrevangskirken Situationsplan
Situationsplan
Fotograf: Tegnestuen
Download billede
Nørrevangskirken Snit
Snit
Fotograf: Tegnestuen
Download billede
Nørrevangskirken Perspektiv
Perspektiv
Fotograf: Tegnestuen
Download billede

Beskrivelse:

Den ekstensive anvendelse af gule tegl sætter sit præg på bygningen.

Bygningselementerne bindes sammen af horisontale bånd i glaseret tegl.

Bag den dekorative udformning af vinduespartiet gemmer kirkens alter sig.

Emneord:

Ovenlys | Kirker | Tegl | Farver | Tårne | Tegltage | Dekorationer |
Adresse:
Nørrevangstorvet 1
4200 Slagelse
Se på Google Maps