Til højre biblioteket i baggrunden børnehaven.
Skyggefuldt indhak mellem bibliotek og børnehave. Bygningerne er udført som en bærende betonkonstruktion.
Facadebrystningerne fanger terrænets græstæppe.
Bygningshjørne med brug af mættet blå som indikation af døre.
Allé af kraftigt beskårede træer i parken nord for Uddannelsescenteret.
Tunge materialer og bygningskroppe sammenbinder Handelsskole, Gymnasium og Teknisk Skole.
Røde håndstrøgne teglsten optræder overalt og bruges til at binde anlægget sammen. Her hjørnet af bygningen for Erhvervsteknik.
Nord for Uddannelsescenteret er opført nye bygninger til Voksenuddannelse.
Træbeklædning på klink på Voksenuddannelsescenteret.
Den rustikke forhal mellem teater, bibliotek og undervisningslokaler.
Det centrale ovenlys i bibliotekssalen, som fungerer både som folkebibliotek og servicebibliotek for skolerne.
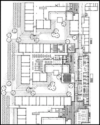
De forskellige skoler er udformet som fløje der sammenbindes af den øst/vest gående forbindelsesgang.
Udsnittet viser sprogskolen. Til højre lokaler for administration og kantine.
Beskrivelse:
Det store anlæg er udformet med hensynstagen til overskueligheden. Det er let at orientere sig fra hovedindgangen og hele centralgaden igennem. Byggeriet er et modulprojektmen der er overalt ved forskydninger af flugtlinier skabt rumlige variationer.
De bærende konstruktioner er i jernbeton men det dominerende materiale er murværk af røde, blødstrøgne sten både ude og inde.
Udsmykningen af bygningen er udført af Finn Mickelborg, Torben Ebbesen og Tonny Hørning.
