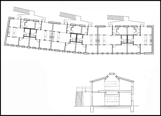
Foran stuelejlighederne findes private haver ud for den respektive bolig.
Stueetagen fremstår relativ høj, hvorimod 1. etagen kun måler 2 meter ved tagfod.
Karréerne omkring omkring infill-boligerne er efterfølgende blevet totalrenoveret.
På Baisstræde-siden har byggeriet bibeholdt de karakteristiske, små vinduer.
Maskinfabrikken er indpasset i en traditionel provinskarré der tidligere indeholdt Vordingborg Maskinfabrik og Støberi, Vordingborg Bibliotek samt diverse beboelsesejendomme.
De 12 boliger er ligeligt fordelt på de to etager og planløsningen er åben på tværs af bygningen. Køkkener og baderum er placeret i midterzonen - for 1.salens vedkommende under ovenlys.
Beskrivelse:
Maskinhallen i Vordingborg ligger i en traditionel provinskarré ved Baisstræde nær Gåsetårnet. Tidligere lå der en industrivirksomhed der hed Vordingborg Maskinfabrik & Jernstøberi. Fabrikken lukkede i 1990 og blev grunden blev købt af kommunen med henblik på byfornyelse og indretning af boliger i den gamle fabrikshal.
Kilde: Arkitektur DK 1998 Nr. 2, side 118-120
