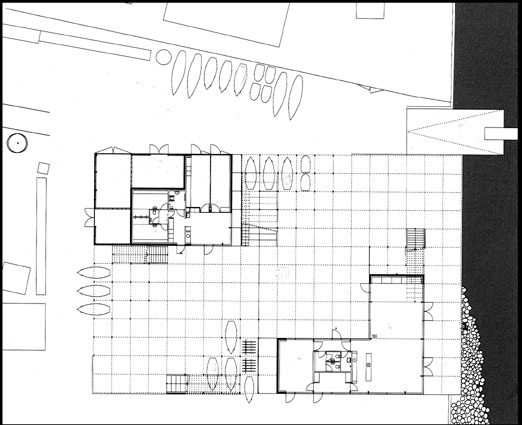
Trædækket hæver og sænker sig for pragmatisk at integrere rumdannelser og bådskure.
Ungdomshuset er anlagt på jordbund forurenet af tungmetaller, der hverken fordamper eller er nedbrydelige. I stedet for en kostbar oprensning er grundet blevet pælefunderet og overdækket.
Det ondulerede trædæk giver varieret mulighed for ophold - og at bevæge kroppen.
Det maritime ungdomshus gemmer sig i det nordøstlige hjørne af Sundby Lystbådehavn.
Under den højeste del af taget er indrettet mødelokaler. Under de skrånende sider opbevares både og materiel.
De mange forbud forekommer svært forståelige i betragtning bygningens funktion som ungdomshus.
Syd for havnen begynder den nyanlagte 2 kilometer lange Amager Strand.
Rumlig afbildning af trædækkets bevægelser i forhold til vandret og lodret.
Beskrivelse:
Huset indgår som del af kvarterløftprojektet for Østamager og indeholder en vifte af maritime fritidsaktiviteter.
Ungdomshuset med det karakteristiske bølgende dæk ligger på kanten af Øresund i Sundby Sejlforenings havn og med Amager Strandpark som nabo. Både over og under husets dæk er der rig mulighed for undervisning, leg og fritidsaktiviteter helt tæt på vandet. Ungdomshuset blev til på opfordring af lokale beboere og indgik som led i kvarterløftet omkring Holmbladsgade.
Beboerne ønskede sig et hus, der både kunne rumme faciliteter til Sundby Sejlforenings ungdomsafdeling og fritidsaktiviteter for børn og unge i området. De to ønsker har tegnestuen PLOT (senere BIG og JDS) forenet i en konstruktion med to huse overdækket af et 1.600 kvadratmeter bølgende trædæk, der ligger som et kunstigt landskab ved vandkanten.
Kilde: DAC
