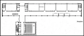
Adgang til træningscenteret sker fra parkeringsplads i vest gennem en mellembygning i glas, der forbinder undervisningsfløjen til venstre med auditorie- & kantineklumpen til højre.
Lederens kontor markerer sig på undervisningsfløjens sydside som en kommandobro der krager ud gennem facaden på 1.sal.
Mens undervisningsfløjens sydfacade domineres af transparente glaspartier indrammet af beton er auditorie- og kantinefløjen indkapslet af en dopbbeltfacade i glasbygningssten.
Undervisningsfløjens nordfacade fremstår forholdsvis tilknappet, omend hvert klasselokale har egen udgang til det fri - til gavn for kursisterne mellem lektionerne.
I den vestlige ende af undervisningsfløjen giver en let ligeløbstrappe på en bærende bjælke adgang til administrationen på 1.sal.
Gulvenes brug af kalfatrede planker og trappens lethed søger bevidst at forlene interiøret med maritime overtoner.
Beskrivelse:
Anlægget består af en lang undervisningsfløj og en påhægtet kantine/auditoriumsklump. Mens kantinens facader primært består af glasbygningssten domineres undervisningsstokken af glas og beton.
