Museets ældste dele er bundet sammen af glasgange. Skulpturen af Henry Moore indgik i samlingen i 1974.
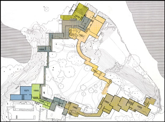
Den oprindelige hovedbygning Louisiana blev opført som villa i 1855.
Hovedindgangen til museet sker gennem den gamle villa og sidefløjen til højre.
Trods det store antal besøgende er det muligt at finde fredelige pletter i parken.
Den velplejede park rummer blandt andet en bregnebevokset slugt, der skærer sig vinkelret ind fra havet.
Gangene opleves som en beskyttet havevandring.
Et knæk i gangforløbet giver en smuk udsigt til parken.
Den forsænkede udstillingssal mod søen er del af det oprindelige byggeri.
Lyse limtræsdragere i loftskonstruktionen refererer til samtidens japanske inspiration.
Aktivitetsrum indrettet for børn. Børnemuseet og museumsbutikken er tegnet af Claus Wohlert og Thorben Schmidt.
Et af de facadeløse udstillingsrum med en udstilling om Jørn Utzon.
Koncert- og foredragssalen blev tilbygget museet i 1976.
Den underjordisk multisal blev tilbygget i begyndelsen af 1980-erne, stadig med Bo og Wohlert som arkitekter.
Den krumme gang anvendes fortrinsvis til grafik.
Trappen til den underjordiske forbindelsesgang.
Trappen fra den underjordiske forbindelsesgang.
Den seneste tilføjelse til museet øgede cafeteriets kapacitet væsentligt.
Beskrivelse:
Louisiana er udvidet betragteligt siden åbningen i 1958, i takt med de voksende ambitioner og stedets popularitet. De i alt syv udvidelser/ombygninger har alle været forestået af arkitekterne Bo og Wohlert – fra og med Østfløjen suppleret af arkitekt Claus Wohlert. Dermed har det været muligt at fastholde den oprindelige grundidé og passe et stadig større Louisiana fornemt ind i terrænet, træer, plæner mm. Museet tager sig derfor fortsat ud som en helhed, hvor samspillet mellem arkitektur, park og natur skaber en særlig klangbund for Louisiana-besøget.
