Pavillonen er et resultat af en arkitektkonkurrence. Den oprindelige pavillon blev schalburgteret under Anden Verdenskrig.
Tilkørslen, der nu ender blindt, er ført ind under bygningen.
Beskrivelse:
Langelinie Pavillonen ligger frit og naturskønt ud til Københavns Havn på en tidligere réduit, en tilflugtsskanse i det ydre befæstningsanlæg til Frederik den 3.s fæstning Kastellet. Réduiten er beliggende i forbindelse med en dæmning, Langelinie, der forbinder det tidligere Frihavnsområde i nord med Nordre Toldbod i syd, mens østsiden vender ud til havnebassinet og vestsiden mod Kastellets voldgrav. Mellem pavillonen og havnen findes den populære Langelinie-promenade med turistattraktionen Den Lille Havfrue i vandkanten, mens en vejbane løber langs dæmningens inderside mod voldgraven og passerer under pavillonens østside.
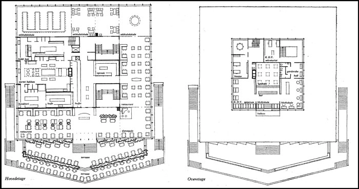
Pavillonen fremtræder i det ydre som tre bygningsvolumener af kasseform i forskellig størrelse stablet oven på hinanden. Nederst findes en lav underetage med karakter af fundament. Herover svæver den bredere og højere hovedetage med et grundareal på ca. 30 x 30 m. Bygningen afsluttes af et væsentligt mindre og lavere kvadratisk bygningsvolumen placeret over hovedetagens midte. Bygningen har et solidt jernbetonfundament i to etager, hvoraf den nederste kælderetage er skjult i undergrunden, mens den lave stueetage fungerer som basis for hovedetagen ovenover.
Kilde: Lex.dk
