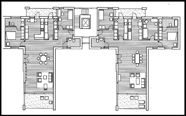
Samtlige, østvendte lejligheder har iidentiske udsigts- og dagslysforhold. Hver opgang betjener 6 lejigheder.
Altanværnene er udført af glas og stål med håndlister af træ. Hermed optimeres udsigten fra lejlighedernes østvendte opholdsareal.
De store træjaluosier kan forskydes sideværts, så de efter behov kan tjene som solafskærmning mod syd.
Bygningen er opført som skalmurede betonelementer.
Bebyggelsen indeholder 36 lejligheder på gennemsnitlig 160 m2 hver - og er samlet i grupper på seks omkring fælles trapperum og elevator.
Beskrivelse:
Boligerne er i opført i tre etager efter kamprincippet: Med en meget lang bygning mod landsiden – projektets ryg – og vinkelret på denne mod vandsiden fløje som lette ’pavilloner’ i en stor have.
Den lange ryg indeholder kernefunktioner som trapper, elevatorer, badeværelser, køkkener og soverum, mens opholdsrummene er placeret i ’pavillonerne’ mod fjorden. Derved har lejlighederne den samme disponering med mest mulig facade mod vandsiden.
Kilde: Dissing + Weitling
