Indtryk fra centerets foyer med et fjernet etagedæk. Til venstre i billedet skimtes arbejdsplads for vagthavende bibliotekar og til høje indgangspartiet.
Ved at fjerne dæk partielt står den gamle betonkonstruktion som en art installation i det ombyggede medborgerhus bibliotek.
På et hjørne ved Jemtelandsgade står det nye mødelokale som en glaskrystal på et bundt skrå betonsøjler og vidner om kvarterets aktiviteter.
Interiør af kvartershusets tilbyggede mødesal.
Bag mødesalens glasfacader står den bærende konstruktion som rå træbjælker med bolte og afstivningskryds i stål.
Beskrivelse:
Indgangsfacaden på det nyindrettede kvartershus. For enden af gaden til venstre findes den nyopførte mødesal.
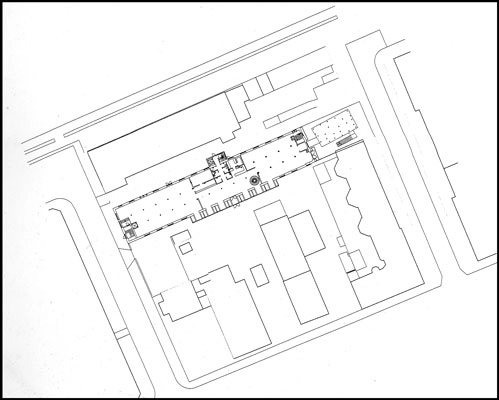
Kvarterhuset er indrettet i en tidligere fabriksbygning fra 1880, og ombygningen var en del af det samlede kvarterløft i området omkring Holmbladsgade.
Et bredt udsnit af husets fremtidige brugere blev taget med på råd i forbindelse med ombygningen, og foruden et bibliotek, en ungdomsklub, en idrætsforening og en forsamlingssal huser bygningen en række af Holmbladsgade-kvarterets foreninger og frivillige netværk.
