Tilbygningen er forbundet med Kurbygningen via to glasmellemgange.
Bagerst på bygningen og ud mod søen er palceret en balkon, som har adgang fra cafeteriaet.
Trappe med nedgang til stiforløbet langs Ørnsø.
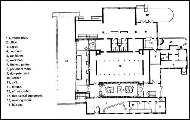
Museets informations- og salgsafdeling er beliggende i den gamle Kurbygning
Glasmellemgangen danner overgang mellem den gamle og nye bygning.
Kurbadssalen med støbejernssøjler og ovenlys er omdannet til det centrale udstillingsrum.
Den store nordvendte sal er 7 meter høj og strækker sig gennem 2 etager. Udenfor ses Ørnsø og bakkerne i Hvillingedal.
Til begge sider i salen ligger andre udstillingsrum i to etager.
I stueplanet støder cafeteriaet op til udstillingssalen.
Et af udstillingsrummene på 2. sal i den gamle Kurbygning
Trappen giver adgang til kontorer samt salene over informations- og salgsarealet.
Kurbadets gamle hovedbygning er markeret med 1-tallet. 2 angiver det ombyggede kurbad med den nye tilbygning.
Beskrivelse:
Den nybyggede udstillingssal er beliggende bag Kurbygningen, som blev opført i 1883, og bygningens gamle hovedindgang er bevaret som indgang til museet. Herfra er der adgang til til stueetagens nye informations- og salgsafdeling med toiletter, garderober og museumsbutik.
Mod vest er placeret et udstillingsrum i én etage, og mod øst er cafeen med tilhørende køkken placeret.
Alle ombyggede og renoverede rum fremstår med nye lyse plankegulve og malede glatte vægge.
Kilde: Arkitektur DK 1999 Nr. 2, side: 76-83
