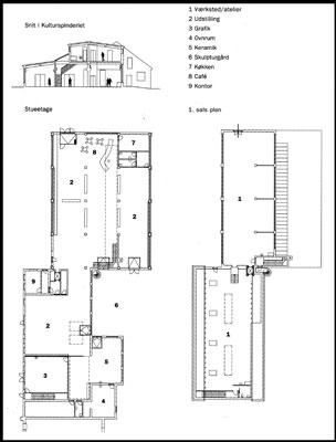
Kulturspinderiet er en kommunal Institution, som stiller udstillingslokale og værksteder til rådighed for kommunens kunstnere.
Udstillingssalen har en loftshøjde på mellem 6 og 10 meter og er bevaret intakt.
Ombygningens intension har været at beholde bygningen intakt og kun tilføje de bygningsdele og materialer, der var nødvendige for den nye funktion.
Kulturfabrikken, som er en del af den nu nedlagte Silkeborg Papirfabrik, er på planen markeret med 1-tallet.
Beskrivelse:
Kulturspinderiet har til huse i en værkstedsbygning tegnet af Gottfred Tvede i 1926 og et tilføjet smedeværksted tegenet af Kaj Stensballe i 1958.
Ved transformationen af bygningerne til kulturelle formål har arkitekterne forsøgt at bevare det store rum med de nordvendte shedtagslys, og er kun opdelt af en boks placeret mellem spærfagene.
