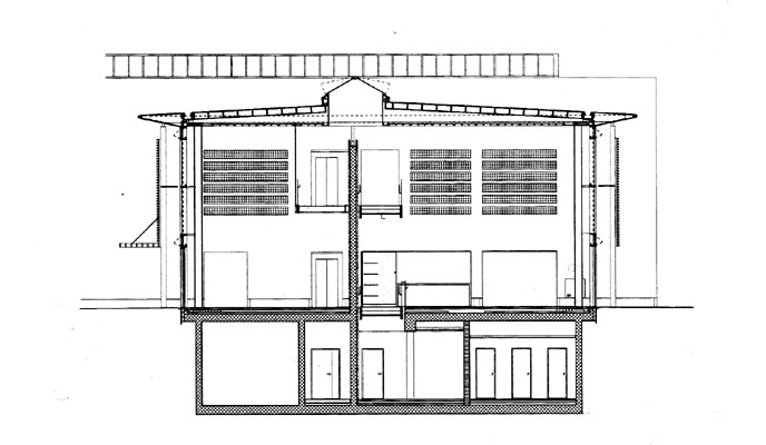
Mellem bygningskroppene ligger det dobbelthøje centralrum med cafe mod haveanlægget.
Centralrummet indeholder foyer, butik, undervisningslokaler, administration og skrankeområde.
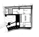
Besøgscentret er beliggende umiddelbart over for de to høje og Kirken.
Foran hovedindgangen er placeret en ny, bemalet runesten udført af Erik Sandquist i 2005.
Trappen fra centralområdet til museets permanente udstilling på første sal.
Ovenlys over trappen. Bygningen er opført i fuldmuret tegl.
Også den permanente udstilling oplyses fortrinsvis af ovenlys.
Som en montre og en del af udstillingen åbner museet sig for at inddrage kirken og højene.
Glasfacaden er opbygget af egetræsbeklædte aluminiumsprofiler. For at reducere det direkte solindfald er facaderne udvendigt afskærmet med vanrette, sortmalede trælameller.
På den mindste af de to sten (Gorms sten over hans dronning Thyra) nævnes ordet Danmark for første gang. Harald Blåtand satte den store som minde over sine forældre Gorm og Thyra. På denne findes for første gang en afbildning af Kristus.
Besøgscentres er placeret umiddelbart overfor kirke og høje.
Beskrivelse:
Besøgscentret er udformet som to sælvstændige to-etages bygninger placeret parallelt med gavlene mod kirkepladsen. Arealet mellem de to bygninger er overdækket i første sals højde og udgør dermed et dobbelthøjt centralt placeret rum.
Huset er fuldmuret og derefter sækkeskuret og hvidmalet både ud- og indvendigt.
