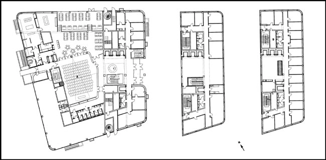
Den nederste del af bygningen er fire etage høj med en base af lys granit. I stueetagen er indrettet butikker og kantine.
Beklædningen er udført som præfabrikerede kobberkassetter med en størrelse på 50 x 150 cm. Disse forventes at patinere hurtigt grundet beliggenheden nær Øresund.
Bygningen rummer hovedkontoret for et advokatfirma.
Udsigten er formidabel fra møderummet på 16. etage.
Det tre etager høje atrium i bygningens nederste del.
Atriet udnyttes blandt andet til et bibliotek for advokatfirmaets ansatte.
Ovenlysvinduer giver mulighed for et kig op langs facaden.
Beskrivelse:
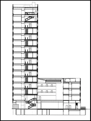
Kobbertårnet er med sine 16 etager blevet både et pejlemærke og vartegn for Københavns Nordhavn.
Bygningen er sammensat af to volumener i henholdsvis fire og 16 etager, men på grund af de afrundede hjørner opleves de to volumener som én plastisk form – hvor tårnbygningen synes at vokse op af den lavere bygning. Bygningen har en base af lys granit, der friholdes fra kobberfacaderne af et vinduesbånd. Der er valgt en beklædning i naturkobber, som på grund af nærheden til Øresund vil patinere relativt hurtigt. I bygningens stueetage er der butikker og café, mens den resterende del af huset er hovedkontor for advokatfirmaet Plesner.
Kilde: Arkitema
