Bygningen er placeret højt på kystskrænten mellem Risskov og Århus Havn.
De halvrunde balkoner i jernbeton bidrager til at give bygningen karakter.
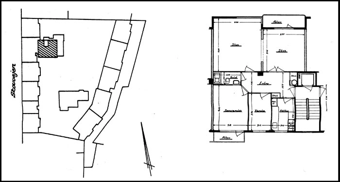
Beskrivelse:
Klintegaarden er et bygningskompleks i Aarhus ved Skovvejen, som på bedste vis falder ind i byens og havnens "landskab". Byggeriet blev færdigt i etaper i perioden 1936-1938.
Huset er opført i jernbeton i funktionalistisk stil. Altanerne ud mod Skovvejen er indbyggede og dermed firkantede, men altanerne ud mod bugten er karakteristisk rundede og i bygningens hjørner trekvartcirkelformede.
Klintegaarden består af to ejendomme - den ene med facade ud mod Skovvejen, den anden oven over skrænten. På grunden lå der allerede to herskabsvillaer fra slutningen af 1890'erne. I stedet for at rive dem ned blev de kalket hvide og tænkt ind i det nye funktionalistiske byggeri. Den ene villa, som før havde tilhørt overretssagfører Peter Kristian Johansen Stampe, blev bygget sammen med den hovedbygning, der har facade ud mod Skovvejen. Mens den anden ligger midt i gården og blev indrettet til fælleshus til beboerne.
En af Ove Christensens overordnede intentioner med Klintegaarden var at skabe et byggeri, der byggede på fællesskab. I det toetagers fælleshus blev derfor indrettet selskabslokaler med Bing & Grøndahl-service til 24 personer, billardsalon til mændene, legestue til børnene og gæsteværelser, som kunne lejes for billige penge i tilfælde af udenbys besøgende. Gårdhaven er udstyret med springvand og store løvtræer, som stammede fra de gamle herskabsvillaers haver. Fra de fælles tagterrasser er der udsigt ud over havnen og Aarhusbugten.
Gennem tiden er det oprindelige kollektive aspekt forsvundet. Kernen i deleøkonomien, fælleshuset, blev efter 2. verdenskrig omdannet til fabrikslokaler for firmaet Rucon, og siden 1977 har den fungeret som privatbolig. Pensionen flyttede efter krigen over i den anden villa og eksisterede indtil 1974, i de sidste år som almindelig pensionatsvirksomhed, mens også denne villa i dag er inddraget til privatbolig.
Bygningens ca. 150 lejligheder, spænder fra 1 værelses til 3½-værelses lejligheder, i gennemsnit er de omkring 50-60 m2. Klintegaardens lejelejligheder solgtes fra 1970 som ejerlejligheder, efterhånden som lejerne flyttede ud. Klintegaarden blev fredet i 2013.
