Bygningen rummer et integreret bibliotek i to etager, biograf og koncertsal, møderum, kunstudstilling og undervisningsrum.
Biblioteket består af en sammenlægning af skolebiblioteket og folkebiblioteket og er en del af den byfornyelse, der blev indledt i 2002 under navnet: Totalplan for Kjellerup.
Arkitekturen kommunikerer med byen og har åbne, store glaspartier mod nord og øst.
Det nye bibliotek er bygget sammen med Kjellerup Kommuneskole via en glasgang. Skolen har godt 800 elever.
Bygningen består af to dele, - den ene af tegl og den anden af glas. Teglmuren er valgt så den tilpasses den bagvedliggende skole.
Børnebiblioteket, som ses her, er placeret i stueetagen og voksenbiblioteket på 1. sal.
I foyeren ud til torvet er placeret bygningens mest udadvendte aktiviteter - biblioteket og salen. Synligheden markeres også af stærke farver.
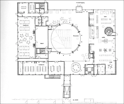
Indgangen til biblioteket er placeret i en limegrøn væg til venstre for rotunden.
Skolens lærerværelser og administration har lokaler på 1. sal. Der er 110 ansatte hvoraf 15 er bibliotekarer.
Den cirkulære multisal i rå beton er det skulpturelle omdrejningspunkt - en rotunde, der giver tyngde til det indre torv.
Den meget enkle plan, hvor funktionerne gruppere sig omkring rotunden, der er placeret centralt på det indendørs torv. Bygningen rummer 2850 m2 og har kostet 32 mio. kr. at opføre.
Se på Google Maps
