Karnapperne er fire meter brede og godt to meter dybe og skråner i top og bund. De er udført i bærende stål med beklædning af aluminium.
I de tre nederste etager er indrettet et fritidscenter for områdets skolebørn. På ungdomsboligerne er der tilføjet karnapper, ophængt i den eksisterende facade.
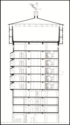
Bygningen rummer 36 ungdomsboliger, der varierer mellem 32 og 36 m2. Disse er fordelt over 5 etager og alle placeret i tolvkantens periferi. Kernen fyldes ud af aflåste opbevaringsrum.
Fritidscentrets tre etager forbindes af en intern trappe, og blev renoveret i forbindelse med indretningen af ungdomsboligerne.
Vandtårnet er tegnet af Arkitekt Edvard Thomsen i 1955. I 1980erne blev de tre nederste etager indrettet til fritidsinstitution.
Alle boliger er indrettet omkring et multimøbel, der samler køkken, seng, og arbejdsplads til én enhed for at frigøre så meget gulvplads som muligt. Møblet har en stor dobbeltseng på toppen, et stort skab på den ene langside og et skrivebord på den anden.
Beskrivelse:
Jægersborg Vandtårn er opført i 1955 efter tegninger af Edvard Thomsen og har en højde på 45 meter, og rummer 2000 m3 vand. I 1980'erne indrettede man et fritidshjem nederst i tårnet og i 2006 byggede arkitekten Dorte Mandrup 36 ungdomsboliger under vandtanken. Dorte Mandrups tillæg ændrede vandtårnets udseende betydeligt med de nye facetterede vinduespartier af metal, som stikker ud under vandtanken. På toppen af det 45 m. høje tårn opbevares stadig 2 millioner liter vand.
