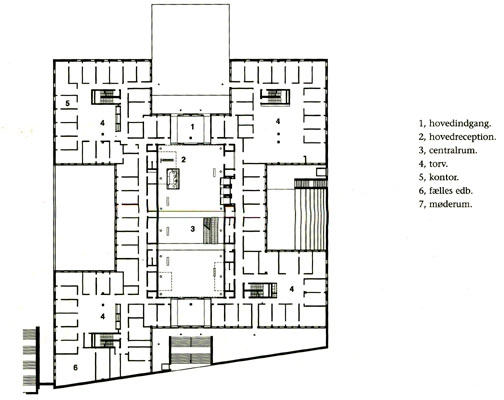
Hovedindgang 
Hovedindgangen ligger i bunden af et gårdrum defineret af tre kontorfacader.
 Fotograf:  Andreas Trier Mørch 
 Download billede 
Foyer I 
Foyerens indgangsetage med hovedtrappens landing og elevatortårn.
 Fotograf:  Andreas Trier Mørch 
 Download billede 
Foyer II 
Det centrale fordelingsrum med gangbroer på tværs af rummet.
 Fotograf:  Andreas Trier Mørch 
 Download billede 
Gangbroer 
Gangbroerne er indbyrdes forbundet af ligeløbstrapper uden mellemreposer.
 Fotograf:  Andreas Trier Mørch 
 Download billede 
Møderum 
Møderum af glas skyder sig ud i centralrummet fra de træbeklædte sidevægge.
 Fotograf:  Andreas Trier Mørch 
 Download billede 
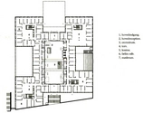
Beskrivelse:
Jægergården er et annex til Århus Rådhus udført i rødbrune teglsten.
Hovedindgangen ligger i bunden af et gårdrum defineret af tre kontorfacader. Foyerens indgangsetage med hovedtrappens landing og elevatortårn.
